JONIŠKIO MIESTO CENTRE PARDUODAMOS KOMERCINĖS PATALPOS
Overview
- Updated On:
- 3 sausio, 2023
- 0 Miegamieji
- 0 Vonios kambariai
- 90 m2 plotas
Aprašymas
PUIKI INVESTICIJA JONIŠKIO MIESTE !
JONIŠKIO MIESTO CENTRE PARDUODAMOS KOMERCINĖS PATALPOS.
OBJEKTO YPATUMAI IR PRIVALUMAI:
• Patalpos pilnai įrengtos, pritaikytos grožio salono veiklai. Papildomai galima priimti vyrų/ moterų kirpėją, manikiūro specialistę, masažo specialistę, makiažo specialistę, blakstienų meistrę ar kitos specializacijos specialistę. Patalpose galimos 4-5 darbo vietos.
• Parduodama su nuotraukose matomais baldais ir kita įranga, nuoma galima iš karto, nereikalaujama papildomų investicijų.
• Komercinės patalpos idealiai tinkamos įvairiai komercinei veiklai: SENIAU PATALPOSE VEIKĖ PARDUOTUVĖ, TAD NESUNKIAI PATALPAS GALIMA PRITAIKYTI PREKYBAI, ODONTOLOGIJOS KLINIKOS VEIKLAI, SOLIARIUMŲ STUDIJAI, NOTARO AR ADVOKATO BIURUI, TAI PAT IR KITOKIAI JŪSŲ VEIKLAI.
• Centrinė Joniškio miesto dalis, aplink daugiabučiai namai, tad DIDELIS ŽMONIŲ SRAUTAS IR ERDVIOS AUTOMOBILIŲ STOVĖJIMO AIKŠTELĖS ŠALIA.
BENDRA INFORMACIJA:
SUDOMINO OBJEKTAS, BET NETINKA KAINA? PASIŪLYKITE SAVO, PASKAMBINUS TELEFONU.
Bendras plotas – 89,90 kv. m.
Adresas – Statybininkų g. 4A Joniškis
Statybos metai – 1984 m.
Renovacijos metai – 2016 m.
Pastato tipas – mūrinis.
Aukštas – 1 iš 5.
Plastikiniai langai, įstiklintas tambūras/atskiras įėjimas.
PATALPŲ APŽIŪRĖJIMAS TIK IŠ ANKSTO SUDERINUS TELEFONU. DĖKOJAME UŽ SUPRATINGUMĄ.
KOMUNIKACIJOS:
Elektra – yra.
Šildymas- centrinis/ kolektorinis.
Vandentiekis – miesto.
Kanalizacija – miesto.
Šviesolaidis internetas.
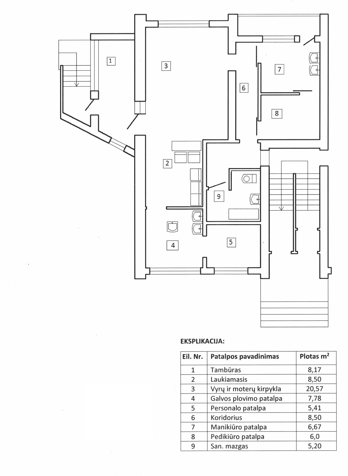
PATALPŲ IŠPLANAVIMAS:
Du įėjimai į patalpas: atskiras įėjimas per tambūrą, taip pat į patalpas galimas patekimas ir per laiptinę.
Patalpos patogiai ir erdviai išplanuotos.
Pateikiame erdvių plotus:
Įėjimo tambūras – 8,17 kv. m.
Pagrindinė salė/ vyrų ir moterų kirpykla – 20,57 kv. m.
Šalia yra klientų laukiamasis, kurio plotas – 8,50 kv. m.
Manikiūro kabineto plotas – 6,67 kv. m.
Pedikiūro/ masažo kabineto plotas – 6 kv. m.
Galvos plovimo patalpa – 7,78 kv. m.
Personalo patalpa – 5,41 kv. m.
Koridorius, kurio plotas – 8,50 kv. m.
San. mazgo plotas – 5,20 kv. m.
GALIMAS KEITIMAS, IŠSIMOKĖTINAI, SU PASKOLA, SVARSTOMI VISI PASIŪLYMŲ VARIANTAI.
Kreipkitės dėl papildomos informacijos ar patalpų apžiūros.
Tel. nr./viber/whatsapp/telegram: +370 687 70644.
NORITE PARDUOTI SAVO NEKILNOJAMĄJĮ TURTĄ? PASIŪLYKITE JĮ MUMS, MES NUPIRKSIME IŠ KARTO.
ARBA TARPININKAUSIME PARDUODANT IR UŽSIIMSIME SKLANDŽIŲ JŪSŲ TURTO PARDAVIMU.























